| |
 |
|
|
|
| |
 |
 |
地 址:无锡市惠山区阳山镇桃园村
联系人:王伟
电 话:
0510-83557588835597
8883559588
传 真:0510-83550218
http://www.wxkerui.com
E-mail:kr@wxkerui.com |
|
|
|
| MH型3t-10t 电动葫芦单梁门式起重机 |
| |
|
|
| |
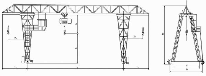
本机是与CD1 或MD1 型电动葫芦配套使用,适用于露天作业的固定跨间,本机禁止,熔化金属及易燃,易爆物品,根据用户要求还可制成单端外伸悬臂式或无悬臂式结构。
本工作环境温度35℃--20℃,电源为三相交流50Hz,380V
本机外形尺寸仅参考 |
| |
| 起重量 |
跨度 |
提升高度 |
轮压 |
起重机总重 |
悬臂长度 |
工作制度 |
电动葫芦 |
运行机构 |
| 型号 |
起升速度 |
运行速度 |
减速比 |
贱速机 |
电动机 |
| 型号 |
功率 |
| t |
m |
m |
KN |
t |
m |
|
|
m/min |
i |
|
|
KW |
| A3 |
26 |
6 |
93 |
16.8 |
S
-
3
|
A5中级 |
CD1
MD1 |
8
8/0.8
7/0.7
|
20 |
33.1
37.9
46.7 |
ZSC(A)-IiI-1/2
ZSC(A)600-1/2ZSC(A)600-IV-1/2
|
YZS(R)132M-6 YZ(R)6+0M6-
YZ(160M-6)
YZ(R)
YZ(R)160-6
|
4
6.3
|
| 9 |
98 |
20 |
| 30 |
6 |
95 |
17.7 |
| 9 |
99 |
20.4 |
| 35 |
6 |
112 |
21.9 |
| 9 |
126 |
23.9 |
| 5 |
26 |
6 |
132 |
20.6 |
| 9 |
139 |
23 |
| 30 |
6 |
128 |
26.9 |
| 9 |
134 |
29.4 |
| 35 |
6 |
129 |
24.66 |
| 9 |
139 |
27.2 |
| 10 |
26 |
6 |
128 |
24.9 |
| 9 |
134 |
28 |
| 30 |
6 |
129 |
29.3 |
| 9 |
136 |
32.7 |
| 35 |
6 |
139 |
24.9 |
| 9 |
152 |
28 |
|
| |
|
主要尺寸
|
|
L1
|
L2
|
I1
|
I2
|
H1
|
H2
|
K
|
b
|
备注
|
|
|
|
|
|
|
|
|
|
|
|
7000
|
7000
|
6360
|
6560
|
985
|
4500
|
8955
|
6000
|
|
|
6310
|
6510
|
5000
|
11950
|
6500
|
|
7500
|
7500
|
6860
|
7060
|
4500
|
9150
|
6000
|
|
6810
|
7010
|
5000
|
12150
|
6500
|
|
10000
|
10000
|
9360
|
9360
|
5000
|
9385
|
6500
|
|
9310
|
9310
|
5500
|
12385
|
7000
|
|
7000
|
7000
|
6690
|
6690
|
1160
|
4500
|
9340
|
6000
|
|
|
6660
|
6660
|
5000
|
12340
|
6500
|
|
7500
|
7500
|
7190
|
7190
|
5000
|
12340
|
6500
|
|
7160
|
7160
|
5000
|
9540
|
7000
|
|
10000
|
10000
|
9690
|
9690
|
5500
|
12540
|
7000
|
|
9660
|
9660
|
5500
|
10000
|
7500
|
|
7000
|
7000
|
9616
|
6312
|
1350
|
6000
|
13000
|
6500
|
|
|
6237
|
6237
|
5000
|
10150
|
7000
|
|
7500
|
7500
|
6816
|
6816
|
5500
|
13150
|
7000
|
|
6737
|
6737
|
6000
|
10350
|
7500
|
|
5750
|
8066
|
8066
|
8066
|
5500
|
13350
|
7500
|
|
7987
|
7987
|
6000
|
133550
|
7500
|
|
| |
| |
| |
|
| |
|
[打印]
[返回]
|
|
|
|
|